HOMELAND
HOMELAND
неактивный пользователь форума, который редко посещает платформу, участвует в обсуждениях и делится советами
HOMELAND
неактивный пользователь форума, который редко посещает платформу, участвует в обсуждениях и делится советами
Новый участник
- Регистрация
- 27.04.2026
- Сообщения
- 2
- Реакции
- 0
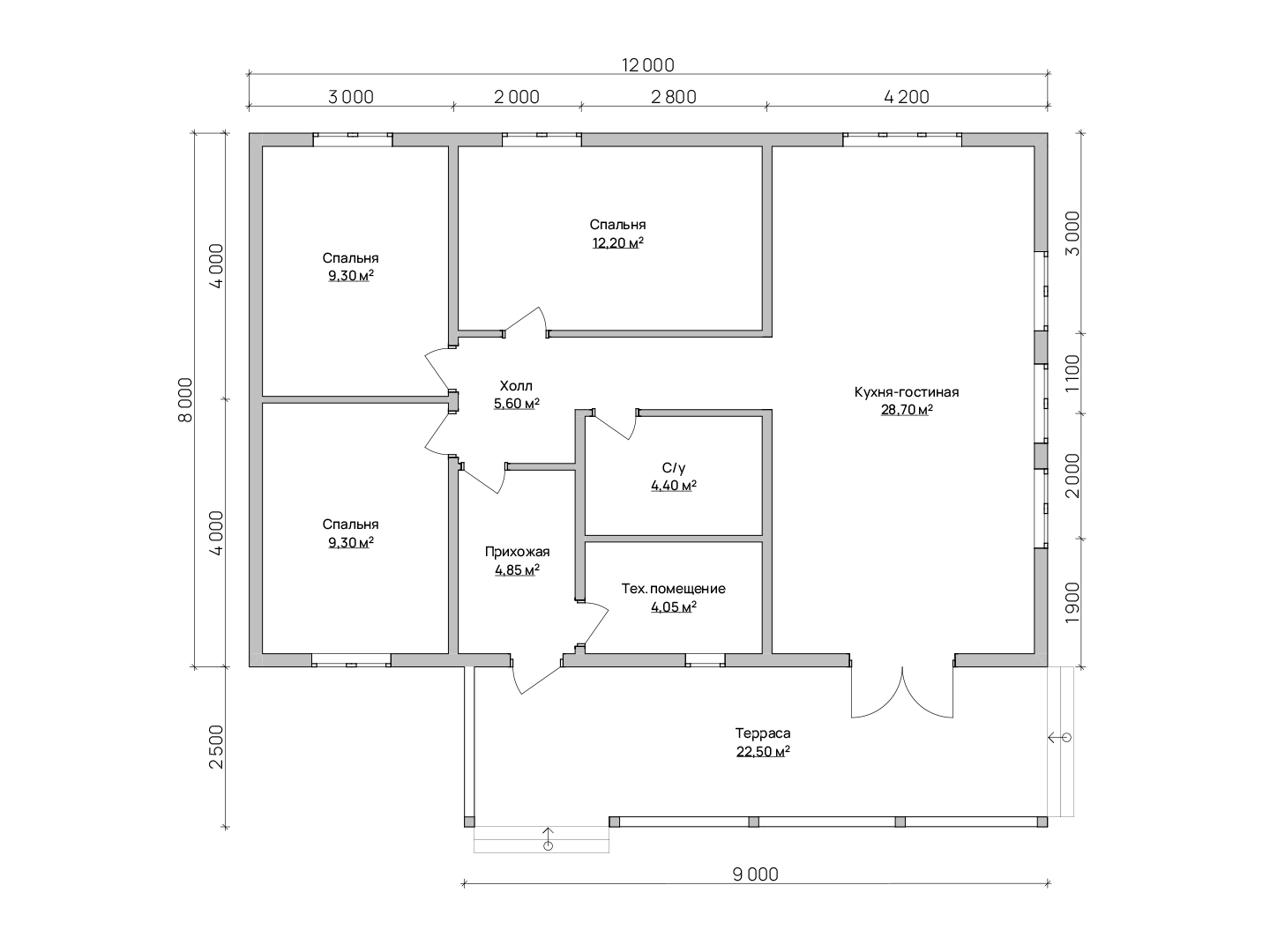
Тип строения: Каркасные дома
Размер: 12x8
Площадь: 101
Дом по каркасно - щитовой технологии
Фундамент:
забивные железобетонные сваи
Утепление:
пол, потолок, стены - 200мм
Кровля:
Металлочерепица
Внутренняя отделка:
имитация бруса
Наружная отделка:
металлический сайдинг
Размер: 12x8
Площадь: 101
Дом по каркасно - щитовой технологии
Фундамент:
забивные железобетонные сваи
Утепление:
пол, потолок, стены - 200мм
Кровля:
Металлочерепица
Внутренняя отделка:
имитация бруса
Наружная отделка:
металлический сайдинг